
MIL-DTL-29181C
6.78
(172.24)
EDGE OF
ACTIVE
DOOR
3.06
2.75
(77.78)
(69.85)
.06
FACE OF
1.458
(1.52)
DOOR
(37.03)
.06
(1.52)
NAPEC
NAPEC
0957-1
0957-2
2.916
(74.08)
9.37
8.75
(238.12)
(222.25)
MK-2 MOD-9
MK-2 MOD-9
2.916
STYLE 1
STYLE 1
(74.08)
1.458
.06 (1.52) 2 PLACES
.09 (2.28) 2 PLACES
(37.03)
GRIND FLUSH TO PC-2
GRIND FLUSH TO PC-2
AFTER WELDING
AFTER WELDING
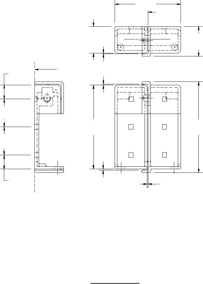
NOTES:
1. On back side of each half, machine or cast 3 holes to accept 0.375-inch (9.52 mm) square neck carriage bolts.
Holes to be centered horizontally and vertically spaced 1.458-inch (37.03 mm) from top and bottom outside
surface. Bolt hole centers 2.916 inches (74.08 mm) apart.
FIGURE 1. Style 1, MK 2 MOD 9.
7
For Parts Inquires call Parts Hangar, Inc (727) 493-0744
© Copyright 2015 Integrated Publishing, Inc.
A Service Disabled Veteran Owned Small Business