
INCH-POUND
AN665 REV 6
31 August 2011
SUPERSEDING
AN665 REV 5
8 APRIL 2009
DETAIL SPECIFICATION SHEET
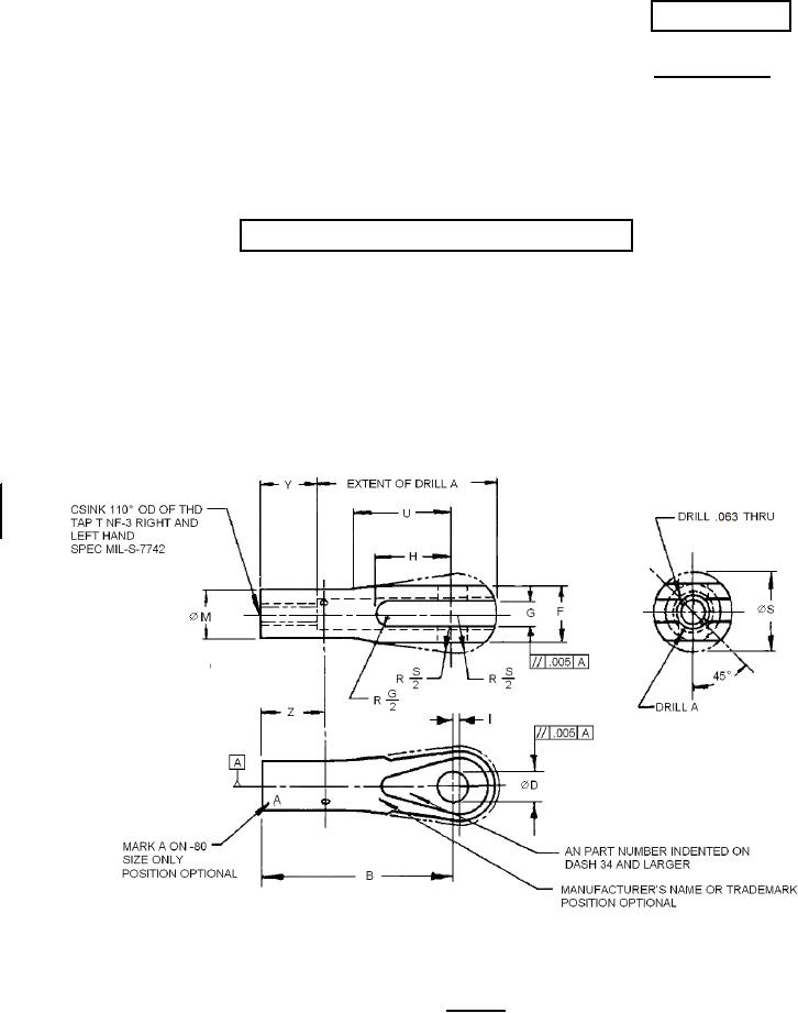
TERMINAL THREADED CLEVIS TYPE TIE ROD
Inactive for new design after 4 April 1998.
This specification sheet is approved for use by all Departments and Agencies of the
Department of Defense.
The requirements for acquiring the product described herein shall consist of this
specification sheet and procurement specification MIL-DTL-5683.
FIGURE I. Tie Rod.
AMSC N/A
FSC 5340