
INCH-POUND
A-A-55592B
27 August 2010
SUPERSEDING
A-A-55592A
31 October 1997
COMMERCIAL ITEM DESCRIPTION
HINGE, BUTT, CONTINUOUS (PIANO)
.060 THICKNESS, .125 PIN DIA
The General Services Administration has authorized the use of this
Commercial Item Description for all Federal Agencies.
1. SCOPE. This Commercial Item Description (CID) covers commercial and industrial quality, continuous
butt piano hinges suitable for use on cases, chests, and any other adaptable surface.
2.
SALIENT CHARACTERISTICS.
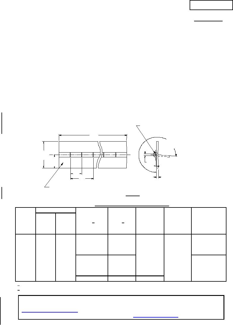
2.1 Butt hinges and pin hinge furnished under this CID shall conform to the dimensions as specified in Table I
and Figure 1 below.
G ((SEENOTTE .3.)3)
SEE NO E 66
L
275 MIN
A
F
B
OPENING
.030 MAX
D
.060 ±.005
P
IMPRESS PART IDENTIFICATION NUMBER AT A MAXIMUM OF 5 INCH INTERVALS
FIGURE 1. HINGE.
TABLE I. DASH NUMBERS AND DIMENSIONS
WIDTH
KNUCKLE
PITCH
KNUCKLE
PIN
STOCK
LENGTH
LENGTH
DASH
A
B
G
.031
F
D 1/
L
No.
REF
P 2/
.03
+.015
+.007
-.003
-.001
9
1.062
.531
85.00
.623 +.000
1.250
10
1.500
.750
.125 .002
SEE SAL.
-.010
11
2.000
1.000
CHAR. 2.6
.130
12
2.500
1.250
.531
13
1.062
.750
14
1.500
.998 +.000
2.000
84.00
1.000
15
2.000
-.015
SEE SAL.
1.250
16
2.500
CHAR. 2.6
17
-
-
-
-
-
1/ SEE SAL. CHAR. 2.4
2/ SEE SAL. CHAR. 2.5
Comments, suggestions, or questions on this document should be addressed to Defense Supply Center
Philadelphia, ATTN: DSCP-NASA, 700 Robbins Avenue., Philadelphia, PA 19111-5096 or e-mail to
dscpg&ispecomments@dla.mil. Since contact information can change, you may want to verify the currency of
AShis add/Ass information using the ASSIST Online database at https://assist.daps.dla.mil.
tMC Nre
FSC 5340
For Parts Inquires call Parts Hangar, Inc (727) 493-0744
© Copyright 2015 Integrated Publishing, Inc.
A Service Disabled Veteran Owned Small Business